020-2260066
Blog
Verkocht

Wevelgemstraat 29 Amsterdam

Omschrijving

Licht en ruim familiehuis met heerlijke tuin op het zuiden! Het huis is keurig onderhouden en instapklaar, je kunt er zo in. Het bestaat uit twee woonlagen met een ruime en lichte woonkamer, moderne keuken en badkamer en drie ruime slaapkamers. De zonnige tuin is verzorgd en groen aangelegd en een grote fietsenschuur en achterom maken het geheel compleet.
Gelegen in het kindvriendelijke en groen opgezette Nieuw Sloten, dichtbij winkels, scholen en sportvelden. Zowel de A4, A10 en de A9 zijn snel bereikbaar en tramlijn 2 en Station Lelylaan liggen dichtbij. Kortom, een heerlijk huis voor iedereen die graag in Amsterdam woont met het gevoel van buiten.

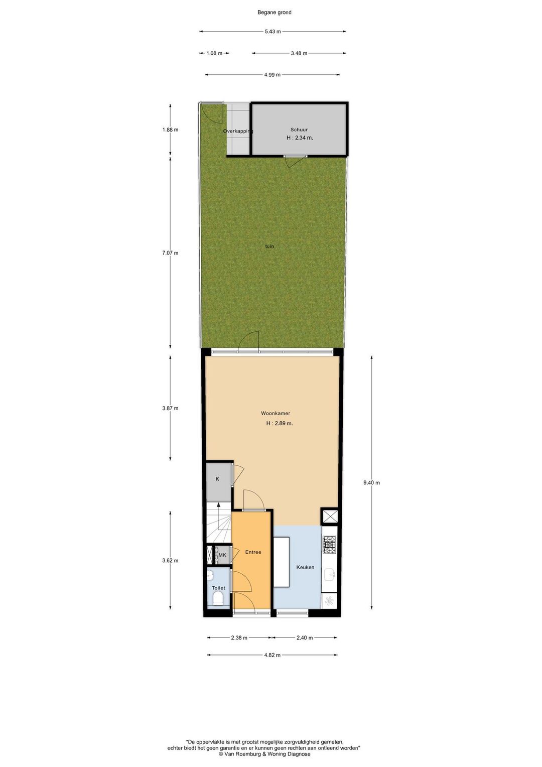
Indeling

Via de voortuin naar de entree van het huis. Binnenkomst in de royale hal met handige garderobekast en met toegang naar de woonkamer aan de achterzijde van het huis. De woonkamer is heerlijk ruim en tuingericht. Door de brede raampartij en het hoge plafond stroomt het licht naar binnen. De tuin is sfeervol aangelegd met diverse fruitbomen en -struiken. Door de ligging op het zuiden, is het heerlijk genieten in de zon. Achterin de tuin staat een grote (fietsen)schuur met overkapping. Via een achterom is de tuin makkelijk te bereiken.
De open keuken is aansluitend op de woonkamer gelegen, aan de voorzijde van het huis. De keuken is in 2017 geplaatst en voorzien van een 5-pits gaskookplaat, afzuigkap, oven, magnetron, koel/vriescombinatie, vaatwasmachine, veel opbergruime in kasten en laden en, door het extra keukenblok, een groot werkblad.
Aan de woonkamer ligt een hele diepe trapkast met veel bergruimte en aan de hal ligt een toilet met fonteintje. Via de trap in de hal naar de eerste verdieping.

Ruime overloop, aan de voorzijde de masterbedroom met ruimte voor een grote kastenwand. Aan de achterzijde liggen de ruime 2e en 3e slaapkamer. De moderne badkamer, eveneens uit 2017, is voorzien van een riante inloopdouche met stortdouche, dubbele wastafel met meubel en spiegelkast en een toilet. Aan de overloop ligt een ruimte voor de wasmachine en -droger opstelling en cv-ketel.

Omgeving

Het huis ligt aan de Wevelgemstraat: een rustige, autoluwe straat in Nieuw Sloten. Het betreft een kindvriendelijke en groene wijk, gelegen naast het natuurgebied Vrije Geer en de oude dorpskern van Sloten.
Winkelcentrum Belgiëplein ligt op korte fietsafstand en beschikt over een groot winkelaanbod. Ook winkelcentrum Nieuw-West is gemakkelijk te bereiken.
In Nieuw Sloten is een ruim aanbod aan basisscholen en kinderopvang en in de buurt zijn veel sportvelden te vinden, evenals de fijne Speeltuin Sloten. Voor een wandeling of picknick liggen de Oeverlanden en de strandjes aan het Nieuwe Meer dichtbij en met het pontje steek je zo het Nieuwe Meer over naar het prachtige Amsterdamse Bos.

Bereikbaarheid

De locatie is zeer goed bereikbaar: via de Anderlechtlaan zijn zowel de A4, de A10 als de A9 snel te bereiken. Voor de auto is er voldoende parkeergelegenheid voor de deur en het betreft een vergunningvrij parkeergebied, dus gratis parkeren. Om de hoek is de halte voor tramlijn 2 naar het Centraal Station en Station Lelylaan ligt op slechts 10 minuten fietsen.

Bijzonderheden

– Bouwjaar 1994;
– Tussenwoning met tuin;
– Woonoppervlakte circa 92 m² (NEN-rapport 2580 aanwezig);
– Ruime woonkamer aan de tuinzijde met hoog plafond en open keuken aan de voorzijde;
– Drie slaapkamers;
– Moderne badkamer met inloopdouche, dubbele wastafel met meubel en toilet;
– Sfeervol aangelegde tuin op het zuiden, met diverse fruitbomen en -struiken;
– Grote tuinschuur;
– Zonnescherm en rolluiken aan de achterzijde;
– Houten (deels draai/kiep) kozijnen met isolatie glas;
– Schilderwerk buitenzijde is mei 2018 gedaan;
– Verwarming en warm water middels cv-ketel (Intergas Kombi Kompakt, bouwjaar 2014);
– Gelegen op het voortdurend recht van erfpacht, de canon is afgekocht tot en met 31 augustus 2043;
– Er is een aanvraag gedaan voor eeuwigdurende erfpacht onder de gunstige voorwaarden, de aanbieding is reeds ontvangen;
– Mogelijkheid tot het plaatsen van een aanbouw en/of opbouw conform wet- en regelgeving;
– Vergunningvrij parkeergebied;
– Oplevering in overleg.

Lees de volledige omschrijving
Wonen 92 m²
Perceel 115 m²
Bouwjaar 1994
Kamers 4

Kenmerken

Aangeboden sinds
6+ maanden
Status
Verkocht
Aanvaarding
In overleg
Soort woonhuis
Eengezinswoning, tussenwoning
Soort bouw
Bestaande bouw
Bouwjaar
1994
Soort dak
Bitumineuze dakbedekking
Ligging
Aan rustige weg, in woonwijk

Oppervlakten en inhoud

Wonen
92 m²
Externe bergruimte
7 m²
Perceel
115 m²
Inhoud
356 m³

Indeling

Aantal kamers
4 kamers (3 slaapkamers)
Aantal badkamers
1 badkamer
Badkamervoorzieningen
Dubbele wastafel, inloopdouche, toilet, wastafelmeubel
Aantal woonlagen
2
Voorzieningen
Buitenzonwering, rolluiken

Energie

Energielabel
B
Isolatie
Volledig geisoleerd
Verwarming
Cv ketel
Warm water
Cv ketel
Cv-ketel
Intergas Kombi Kompakt (gas gestookt combiketel uit 2014, eigendom)

Kadastrale gegevens

Perceelnaam
Sloten E 7692
Oppervlakte
115 m²
Eigendomssituatie
Erfpacht

Buitenruimte

Tuin
Achtertuin, voortuin
Achtertuin
49 m²
Ligging tuin
Zuid bereikbaar via achterom

Parkeergelegenheid

Soort parkeergelegenheid
Openbaar parkeren
Bekijk alle kenmerken