020-2260066
Blog
Verkocht

Warmondstraat 179 3 Amsterdam

Omschrijving

Licht en fijn dubbel bovenhuis op eigen grond (circa 69 m²) met een groot dakterras grenzend aan de keuken, maar ook een balkon aan de slaapkamer. Dit alles in een van de mooiste straten van de Hoofddorpplein buurt. Kortom een heerlijk huis op een perfecte plek! Op de derde verdieping de sfeervolle woonkamer, 2 slaapkamers, badkamer en balkon, op de vierde verdieping de open keuken met eetgedeelte en een schuifpui naar het aanliggende en zonnige dakterras van circa 36 m². De woning is afgewerkt met zwarte details, ingebouwde spots en een eiken houten vloer (lamelparket) dit geeft het huis een luxe uitstraling.
Wonen in een zeer goede en populaire locatie in het stadsdeel Amsterdam Zuid, in de gezellige en geliefde Hoofddorppleinbuurt? Plan dan snel een bezichtiging in!

Indeling:
Gemeenschappelijk trappenhuis naar de derde verdieping.

Derde verdieping
Deze verdieping is onder te verdelen in 3 kamers. Zodra je de woning binnenkomt bevind je je in de ruime woonkamer welke meerdere grote raampartijen heeft, waardoor het huis zeer licht is. De woonkamer is afgewerkt met moderne inbouwspots en heeft een plafondhoogte van 2,65 m². De volledig betegelde badkamer is voorzien van: ligbad, wastafel met meubel, toilet en een inloopdouche. Ook is er een apart afsluitbare ruimte voor de wasmachine/droger met opbergruimte. Beide slaapkamers zijn aan de achterzijde gelegen en hebben toegang tot het balkon. De grote slaapkamer heeft een brede inbouw kast en een vliering (circa 7.5m²) die beide veel opbergruimte biedt. De tweede slaapkamer is af te sluiten via schuifdeuren en heeft een grote boekenkast. Het balkon is gelegen op het Oosten en beschikt over een balkon kast.

Via de trap naar de vierde verdieping.

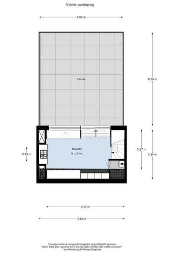
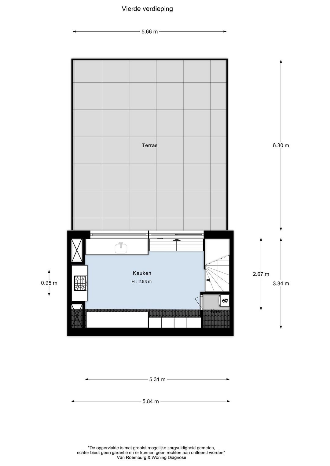
Vierde verdieping
Zodra je de vierde verdieping betreedt valt direct de ruime en moderne keuken op. De keuken is voorzien van een 4-pits kookplaat, oven, vaatwasser, kokend waterkraan en veel opbergruimte. In de open keuken is er ook plek voor een gezellig eetgedeelte, zo heb je een gezellige combinatie van koken en tafelen. Via de schuifpui naar het ruime dakterras van circa 36 m². Een heerlijke plek voor meerder zitjes om te genieten van de zon.

Omgeving:
Het huis ligt aan de Warmondstraat in Amsterdam Zuid, om de hoek van het Hoofddorpplein. Een rustig gedeelte in de levendige Hoofddorppleinbuurt. Hier zijn vele leuke winkels te vinden, zoals een kaasboer, notenwinkel, wijnhandel, groenteboer, slager, bakker, banketbakker en nog veel meer. Voor de dagelijkse boodschappen is alles op loopafstand. Zo zijn er diverse grote supermarkten, een Hema en Etos aan de Sloterkade. In de directe omgeving is tevens veel keuze als het gaat om cafés en restaurants. Denk aan: Gent aan de Schinkel, Stadscafé van Mechelen, Drovers Dog, Lokaal van de Stad en de Vondeltuin. Voor sport en ontspanning kun je terecht in het Vondelpark en het Rembrandtpark, beide op korte wandelafstand. Het Amsterdamse Bos ligt op slechts een kwartiertje fietsen vanaf deze locatie. In de buurt zijn ook diverse scholen gevestigd, waaronder ook het nieuwe gebouw van The British School of Amsterdam.

Bereikbaarheid:
De bereikbaarheid van dit huis is zeer goed: de Ring A10 is zowel via de S106 als via de S107 binnen een paar minuten te bereiken. Ook zijn er verschillende mogelijkheden voor openbaar vervoer in de omgeving. Tramlijn 2 vertrekt vanaf het Hoofddorpplein en brengt je naar het centrum en Centraal Station. Buslijn 15 naar Station Zuid en buslijn 62 naar Station Lelylaan vanaf het Hoofddorpplein. Per fiets zijn het centrum en andere delen van de stad in een mum van tijd bereikbaar, bijvoorbeeld via het Vondelpark, Overtoom en het Rembrandtpark.

Bijzonderheden:
– Bouwjaar circa 1929
– Gelegen op eigen grond (geen erfpacht)
– Woonoppervlakte van circa 69 m² (rapport aanwezig)
– Energielabel B
– Dubbel bovenhuis op de 3e en 4e verdieping
– Afgewerkt met mooie details
– Ruim dakterras en balkon
– 2 slaapkamers
– Eigen entree vanaf de 3e verdieping
– Verwarming en warm water middels cv-ketel (type Nefit Trendline, bouwjaar 2019)
– Actieve en gezonde VvE in professioneel beheer
– Servicekosten bedragen momenteel € 98,46 per maand
– Gelegen in de gezellige Hoofddorppleinbuurt
– Oplevering in overleg.

******

Light and nice double upper house on its own ground (approximately 69 m²) with a large roof terrace adjacent to the kitchen, but also a balcony at the bedroom. All this in one of the most beautiful streets of the Hoofddorpplein neighbourhood. In short, a lovely house in a perfect location! On the third floor the attractive living room, 2 bedrooms, bathroom and balcony, on the fourth floor the open kitchen with dining area and sliding doors to the adjacent and sunny roof terrace of approximately 36 m². The house is finished with black details, built-in spots and an oak wooden floor (parquet parquet), which gives the house a luxurious look.
Want to live in a very good and popular location in the Amsterdam South district, in the cozy and popular Hoofddorppleinbuurt? Then schedule a visit quickly!

Layout:
Common staircase to the third floor.

Third floor
This floor can be divided into 3 rooms. As soon as you enter the house you will find yourself in the spacious living room which has several large windows, making the house very light. The living room is finished with modern recessed spotlights and has a ceiling height of 2.65 m². The fully tiled bathroom has a bath, washbasin with furniture, toilet and a walk-in shower. There is also a separate lockable room for the washer/dryer with storage space. Both bedrooms are located at the rear and have access to the balcony. The master bedroom has a wide built-in closet and a loft (approximately 7.5m²), both of which offer plenty of storage space. The second bedroom can be closed via sliding doors and has a large bookcase. The balcony is located on the East and has a balcony closet.

Via the stairs to the fourth floor.

Fourth floor
As soon as you enter the fourth floor, you will immediately notice the spacious and modern kitchen. The kitchen is equipped with a 4-burner stove, oven, dishwasher, boiling water tap and plenty of storage space. In the open kitchen there is also room for a cozy dining area, so you have a pleasant combination of cooking and dining. Through the sliding doors to the spacious roof terrace of approximately 36 m². A lovely place for several seats to enjoy the sun.

Surroundings:
The house is located on Warmondstraat in Amsterdam South, around the corner from Hoofddorpplein. A quiet area in the lively Hoofddorppleinbuurt. Here you will find many nice shops, such as a cheesemonger, nut shop, wine shop, greengrocer, butcher, bakery, confectioner and much more. For daily shopping everything is within walking distance. There are several large supermarkets, a Hema and Etos on the Sloterkade. In the immediate vicinity there is also a lot of choice when it comes to cafes and restaurants. Think of: Gent aan de Schinkel, City Café of Mechelen, Drovers Dog, Local of the City and the Vondeltuin. For sports and relaxation you can visit the Vondelpark and the Rembrandtpark, both within a short walking distance. The Amsterdamse Bos is only a fifteen minute bike ride from this location. Several schools are also located in the area, including the new building of The British School of Amsterdam.

Accessibility:
The accessibility of this house is very good: the Ring A10 can be reached within a few minutes via both the S106 and the S107. There are also various options for public transport in the area. Tram line 2 departs from Hoofddorpplein and takes you to the center and Central Station. Bus line 15 to Station Zuid and bus line 62 to Station Lelylaan from Hoofddorpplein. The center and other parts of the city can be reached by bicycle in no time, for example via Vondelpark, Overtoom and Rembrandtpark.

Particularities:
– Year of construction circa 1929
– Located on private land (no leasehold)
– Living area of ??approximately 69 m² (report available)
– Energy label B
– Double upper house on the 3rd and 4th floor
– Finished with beautiful details
– Spacious roof terrace and balcony
– 2 bedrooms
– Private entrance from the 3rd floor
– Heating and hot water through central heating boiler (type Nefit Trendline, built in 2019)
– Active and healthy VvE in professional management
– Service costs are currently € 98.46 per month
– Located in the cozy Hoofddorppleinbuurt
– Delivery in consultation.

Lees de volledige omschrijving
Wonen 69 m²
Bouwjaar 1929
Kamers 4

Kenmerken

Aangeboden sinds
6+ maanden
Status
Verkocht
Aanvaarding
In overleg
Soort woonhuis
Appartement, bovenwoning
Soort bouw
Bestaande bouw
Bouwjaar
1929
Soort dak
Pannen
Ligging
Aan rustige weg, in woonwijk

Oppervlakten en inhoud

Wonen
69 m²
Gebouwgebonden Buitenruimte
39 m²
Inhoud
226 m³

Indeling

Aantal kamers
4 kamers (2 slaapkamers)
Aantal badkamers
1 badkamer
Badkamervoorzieningen
Douche, ligbad, toilet, wasmachineaansluiting, wastafel, wastafelmeubel
Aantal woonlagen
2
Voorzieningen
Mechanische ventilatie, natuurlijke ventilatie, schuifpui

Energie

Energielabel
B
Isolatie
Dakisolatie, dubbel glas, vloerisolatie
Verwarming
Cv ketel
Warm water
Cv ketel
Cv-ketel
Nefit HRC30 CW5 (gas gestookt combiketel uit 2019, eigendom)

Kadastrale gegevens

Perceelnaam
Sloten O 2577
Eigendomssituatie
Volle eigendom

Buitenruimte

Tuin
Zonneterras
Zonneterras
36 m²
Ligging tuin
Oost

Parkeergelegenheid

Soort parkeergelegenheid
Betaald parkeren, openbaar parkeren, parkeervergunningen
Bekijk alle kenmerken