020-2260066
Blog
Verkocht

Sloterkade 85 2 Amsterdam

Omschrijving

Heerlijk royaal en licht hoekappartement op de tweede verdieping met fantastisch uitzicht op het water, in de fijne Hoofddorppleinbuurt van Amsterdam Zuid. Het appartement van circa 69 m² met twee balkons ligt op een heerlijke plek in de stad: nabij het Vondelpark, met uitzicht op de voorbijtrekkende schepen en met leuke winkels en restaurants in de directe omgeving. De hoekligging en de hoge ramen zorgen voor veel lichtinval en uitzicht aan drie zijden van het gebouw, waardoor de vrije beleving hier geweldig is. Wij laten het appartement graag zien tijdens een bezichtiging, zodat u zelf de unieke ligging van dit fijne appartement kunt ervaren.

Indeling

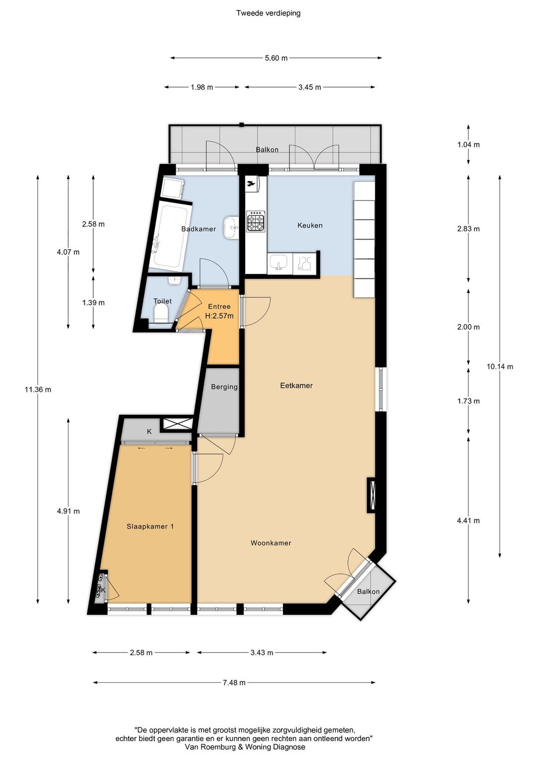
Via het gemeenschappelijk trappenhuis naar de tweede verdieping. Entree in het appartement, hal met garderobe en via deur met glas-in-lood toegang tot de woonkamer. De zeer ruime woonkamer geeft door de hoekligging uitzicht aan twee zijden. Prachtig zicht op het water en zichtlijnen naar de Sloterkade, Weissenbruchstraat en de Jacob Marisstraat. De woonkamer beschikt over openslaande deuren naar het kleine balkon aan de voorzijde en biedt ruimte voor een heerlijke zithoek en grote eettafel. De half open keuken ligt aan de achterzijde, is opgesteld in L-vorm en beschikt daarnaast over een grote kastenwand met inbouwapparatuur. De keuken voorziet in een vaatwasmachine, inductiekookplaat met afzuigkap, inbouwoven, inbouwmagnetron, koelkast met vriesvak en heel veel opbergruimte. De openslaande deuren leiden naar het balkon op het westen waar je heerlijk beschut kunt zitten.
Naast de woonkamer ligt de slaapkamer, met ruimte voor een tweepersoonsbed en een grote kledingkast. Ook aan de woonkamer ligt een diepe inloopkast met veel bergruimte. De badkamer is te betreden vanuit de hal en is voorzien van een ligbad met douche, wastafel met grote spiegel, handdoekradiator, wasmachine en deur naar het balkon. Hiernaast is een separaat toilet met fonteintje gesitueerd.

Omgeving

Het huis ligt op een prachtige plek: op de hoek van de Sloterkade en de Weissenbruchstraat, aan de rand van de levendige Hoofddorppleinbuurt. Voor het huis ligt de Schinkel, een in 1917 gekanaliseerde rivier, waar imposant scheepverkeer aan je deur voorbijtrekt. ‘Brug 360’, de stalen ophaalbrug voor fietsers en voetgangers, is onderdeel van de ‘staande mastroute’, en maakt de doorgaande fietsroute naar het Vondelpark mogelijk.
Rond het Hoofddorpplein en de Zeilstraat is de lokale middenstand ruim vertegenwoordigd met een verscheidenheid aan winkels. Ook voor de dagelijkse boodschappen hoef je niet ver te lopen, zo zijn er een grote supermarkt, een Hema en Etos aan de Sloterkade en in de directe omgeving is tevens veel keuze als het gaat om cafés en restaurants. Denk aan: Stadscafé van Mechelen, Gent aan de Schinkel en de Vondeltuin. Voor sport en ontspanning kun je terecht in het Vondelpark.

Bereikbaarheid

De bereikbaarheid van dit appartement is zeer goed: de Ring A10 is via de S106 binnen een paar minuten te bereiken. Ook zijn er verschillende openbaarvervoer mogelijkheden in de omgeving. Buslijn 15 (Station Sloterdijk-Station Zuid) vertrekt vanaf de Haarlemmermeerstraat en het Hoofddorpplein. Tramlijn 2 rijdt via het Hoofddorpplein naar het Centraal Station en op de tramlijnen 1, 11 en 17 stap je op via het Surinameplein. Per fiets zijn het centrum en andere delen van de stad in een mum van tijd bereikbaar, bijvoorbeeld via het Vondelpark.

Bijzonderheden

– Bouwjaar 1900;
– Ruim 2-kamer(hoek)appartement op de 2e verdieping, met geweldig uitzicht op het water;
– Woonoppervlakte van circa 69 m² (NEN-rapport 2580 aanwezig);
– Royale woonkamer;
– Half open keuken met veel opbergruimte en openslaande deuren naar het balkon;
– Balkon aan de achterzijde op het westen;
– Klein balkon met openslaande deuren vanuit de woonkamer aan de voorzijde;
– Ruime slaapkamer;
– Diepe bergkast met veel opbergruimte;
– Badkamer voorzien van ligbad met douche, wastafel en wasmachineaansluiting;
– Houten kozijnen met dubbel glas (2016);
– Verwarming en warm water middels cv-ketel (type Remeha, bouwjaar 2014);
– VvE in eigen beheer bij de 4 leden, meerjarenonderhoudsplan aanwezig;
– Gelegen op het tijdelijk recht van erfpacht, betreffende vicariegrond, lopende tot en met 30-4-2053, aanvraag voor overstap naar eeuwigdurende erfpacht tijdig gedaan, onder de gunstige voorwaarden;
– Ouderdomsclausule van toepassing;
– Oplevering in overleg, kan snel.

Lees de volledige omschrijving
Wonen 69 m²
Bouwjaar 1900
Kamers 2

Kenmerken

Aangeboden sinds
6+ maanden
Status
Verkocht
Aanvaarding
In overleg
Soort woonhuis
Appartement, bovenwoning
Soort bouw
Bestaande bouw
Bouwjaar
1900
Ligging
Aan vaarwater, in woonwijk, vrij uitzicht

Oppervlakten en inhoud

Wonen
69 m²
Gebouwgebonden Buitenruimte
7 m²
Inhoud
221 m³

Indeling

Aantal kamers
2 kamers (1 slaapkamer)
Aantal badkamers
1 badkamer
Badkamervoorzieningen
Douche, ligbad, wasmachineaansluiting, wastafel
Aantal woonlagen
1

Energie

Energielabel
E
Isolatie
Dubbel glas
Verwarming
Cv ketel
Warm water
Cv ketel
Cv-ketel
Remeha (gas gestookt combiketel uit 2014, eigendom)

Kadastrale gegevens

Perceelnaam
Sloten O 2990
Eigendomssituatie
Erfpacht

Parkeergelegenheid

Soort parkeergelegenheid
Openbaar parkeren
Bekijk alle kenmerken