020-2260066
Blog
Verkocht

Postjeskade 6 H Amsterdam

Omschrijving

Prachtig verzorgd en instapklaar benedenhuis met heerlijke zonnige tuin en uitzicht op het water. Een fijn huis van circa 77 m² in een doodlopende straat (vrijwel altijd parkeerplek beschikbaar!), waar je via een sluipweg zo het Rembrandtpark in loopt. Een raampartij in de woonkamer, die bijna net zo breed is als het gehele huis, brengt enorm veel licht binnen waardoor je een prachtige woon/eetkamer en keuken hebt. Ook zijn er twee slaapkamers, een moderne badkamer met ligbad en een apart toilet. Dubbele openslaande deuren geven toegang tot de goed onderhouden en groene tuin. Hier vind je ook een ruime schuur met veel opbergruimte. In de “gevel” tuin aan de voorkant van het huis geniet je de hele dag lang van de zon en heb je uitzicht op het water waar je een bootje neer kan leggen. Deze benedenwoning ligt in het gewilde stadsdeel De Baarsjes op een top plek in Amsterdam.
Kortom, een superfijn benedenhuis met grote tuin in een leuke buurt, dat wij u graag laten zien!

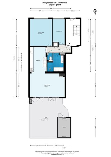
Indeling:

Via de gemeenschappelijke entree naar eigen entree op de begane grond. Bij binnenkomst zijn rechts de slaapkamers gesitueerd, die erg licht zijn door de vele ramen en uitzicht hebben op het water. In de grote slaapkamer is er genoeg plek voor een ruime kast, een bureau en natuurlijk een groot bed. De andere slaapkamer is in gebruik als kinderkamer maar er past met gemak een tweepersoonsbed. Via de keuken de lichte en gezellig woonkamer in, door de pui aan de achterkant en de dubbele deuren die open kunnen, verbind je de tuin met het huis. Er is een sfeervolle bio ethanol openhaard en onder de eetkamerbank is veel opbergruimte, ideaal. De open keuken beschikt over luxe inbouwapparatuur van SMEG: een 5- pits gasfornuis met wokbrander, afzuigkap, oven, grill- magnetron, vaatwasser, koelkast en vriezer. Ook is er genoeg werk- en kastruimte. De badkamer is modern afgewerkt met beton ciré en voorzien van een inloopdouche, ligbad, dubbele wastafel met breed meubel, spiegel en handdoekradiator.

De heerlijk ruime zonnige tuin is grotendeels voorzien van groen en aan de achterzijde is het verhard en is er ruimte voor een zithoek. Een heerlijke combinatie tussen een groene en verharde tuin. Linksachter is er een ruime stenen schuur met elektriciteit. Ondanks de ligging op het noordwesten; achterin veel zon van einde ochtend tot het begin van de avond!

Ligging:

Dit fantastische woonhuis uit 1949 ligt in de Baarsjes, centraal tussen Oud Zuid en Oud West in. Het Vondelpark en het Rembrandtpark zijn op loopafstand. Ook op loopafstand zijn er verschillende supermarkten, zoals de Albert Heijn en de Aldi, maar ook de warme bakker en de slager. Bars en restaurants aanwezig dichtbij zijn er in overvloed zoals Café Goldmund, Café Zurich en de Huiskamer van Rembrandt. Lekker winkelen kun je op de Amstelveenseweg, de Kinkerstraat en de populaire Jan Pieter Heijestraat met zijn vele winkeltjes, bars en restaurants. Ook sportscholen zijn vlakbij, zoals Equal Yoga en Yagoy op een minuut lopen en Basic Fit en David Lloyd op drie minuten fietsen. In de directe omgeving vind je veel scholen en crèches. Het centrum bereik je per fiets in 10 minuten.
Met de boot vaar je ook zo het centrum van de stad in, aangezien je je eigen boot voor de deur kan leggen. Ideaal om lekker te genieten op of aan het water.

Bereikbaarheid:

Binnen no-time ben je in het centrum en alle uitvalswegen zijn direct in de buurt. Om de hoek van de straat, op de Hoofdweg neem je de tram of bus richting centrum of Station Lelylaan en met de auto ben je binnen enkele minuten op de A10 (ring Amsterdam).

Bijzonderheden:

– Bouwjaar 1949
– Woonoppervlakte van circa 77 m² (meetrapport aanwezig)
– Geheel gerenoveerd inclusief aanbouw in 2017
– Ruime en zonnige tuin
– Verzorgd en net 3-kamer benedenhuis
– Parkeren voor de deur, vrijwel altijd plek
– Boot kan voor de deur
– Zeer lichte woonkamer door de dubbele openslaande deuren
– Bio ethanol open haard
– Open keuken met SMEG inbouwapparatuur
– 2 lichte en goed bemeten slaapkamers met uitzicht op het water
– Moderne badkamer met beton ciré
– Centrale verwarming (cv-ketel Remeha, bouwjaar 2017)
– Gezonde VvE, professioneel beheerd met meerjarenonderhoudsplan, bijdrage VvE momenteel € 140,- per maand (wordt in 2023 verlaagd naar € 116,- per maand op basis van herziene MJOP)
– Het voortdurend recht van erfpacht is afgekocht t/m 31-7-2054. Vanaf 1-8-2054 is de canon eeuwigdurend vastgezet en bedraagt vanaf dan € 725,97 per jaar, exclusief jaarlijkse indexering vanaf heden
– Algemene ouderdomsclausule van toepassing
– Oplevering in overleg.

Lees de volledige omschrijving
Wonen 77 m²
Bouwjaar 1949
Kamers 3

Kenmerken

Aangeboden sinds
6+ maanden
Status
Verkocht
Aanvaarding
In overleg
Soort woonhuis
Appartement, benedenwoning
Soort bouw
Bestaande bouw
Bouwjaar
1949
Ligging
Aan rustige weg, aan vaarwater, aan water, in woonwijk, vrij uitzicht

Oppervlakten en inhoud

Wonen
77 m²
Externe bergruimte
7 m²
Inhoud
279 m³

Indeling

Aantal kamers
3 kamers (2 slaapkamers)
Aantal badkamers
1 badkamer
Badkamervoorzieningen
Dubbele wastafel, inloopdouche, ligbad, wastafelmeubel
Aantal woonlagen
1
Voorzieningen
Mechanische ventilatie, natuurlijke ventilatie

Energie

Energielabel
C
Isolatie
Dubbel glas, muurisolatie
Verwarming
Cv ketel
Warm water
Cv ketel
Cv-ketel
Remeha (gas gestookt combiketel uit 2017, eigendom)

Kadastrale gegevens

Perceelnaam
Sloten M 1790
Eigendomssituatie
Erfpacht

Buitenruimte

Tuin
Achtertuin, voortuin
Achtertuin
37 m²
Ligging tuin
Noordwest

Parkeergelegenheid

Soort parkeergelegenheid
Betaald parkeren, openbaar parkeren, parkeervergunningen
Bekijk alle kenmerken