020-2260066
Blog
Verkocht

Leo Hornstraat 79 Amsterdam

Omschrijving

Wonen in een sociaal en duurzaam project, tussen de stad en het landelijke Waterland in.

Subliem dubbel bovenhuis gelegen op het moderne Zeeburgereiland met een oppervlakte van 101 m². Een duurzame woning met schuin uitzicht op het prachtige IJmeer waar je met een weidse blik uitkijkt naar alle voorbijvarende schepen. Vanuit de woonkamer uitzicht op landelijk Noord met de toren van Ransdorp als landmark. Het dubbele bovenhuis beschikt over een riante living met hoog plafond en indrukwekkende raampartij, open keuken, 3 slaapkamers, badkamer met ligbad en een balkon gelegen op het zuiden.
Gebouw Nautilus is een gebouw met veel extra faciliteiten, zoals een theaterzaal, expo-ruimte met bar, dakterras en rondom een prachtige binnentuin.

Nautilus is een woonwerkgebouw, tot stand gekomen als CPO-project. Het wonen in dit complex wordt gekenmerkt door kernwaarden als: een mix tussen gemeenschappelijkheid en individueel wonen, ecologische duurzaamheid en ruimte voor cultuur en maatschappelijke betrokkenheid.

De stadswijk Zeeburgereiland is meer dan gewild. Aan de oostkant van de stad ben je binnen 10 minuten in hartje Amsterdam. Nog dichterbij ligt het levendige Amsterdam-Oost en het IJ, het pittoreske Schellingwoude en Durgerdam. Op het eiland is in de directe omgeving alles binnen handbereik.

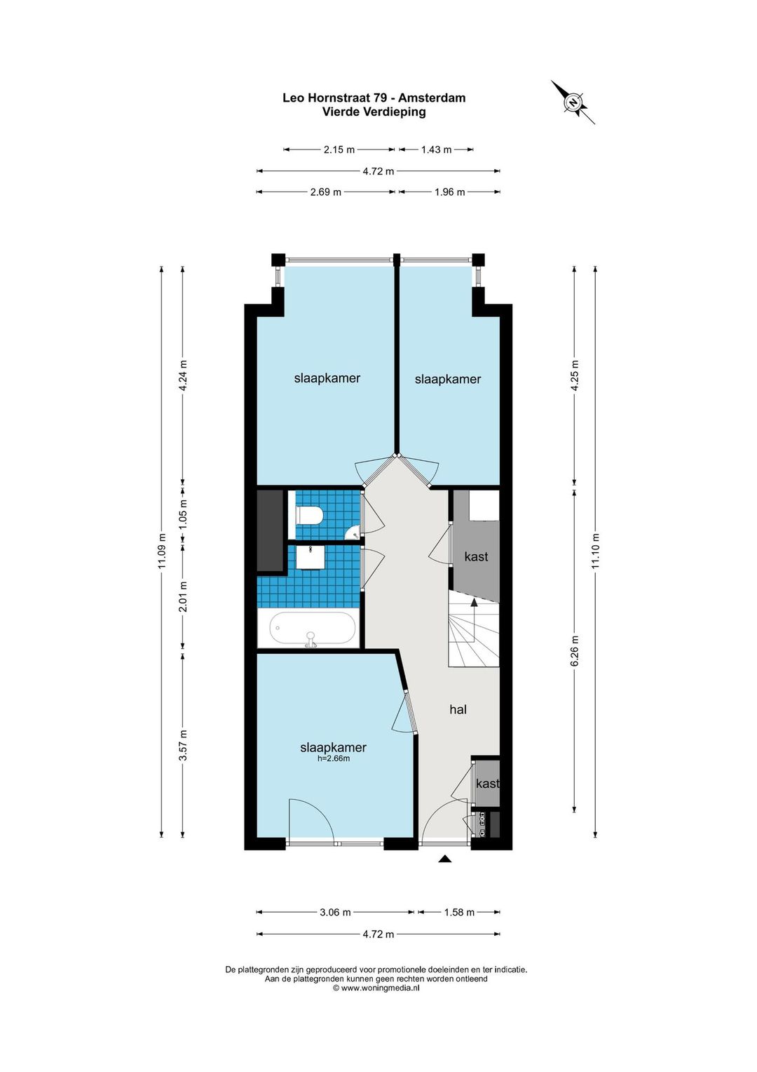
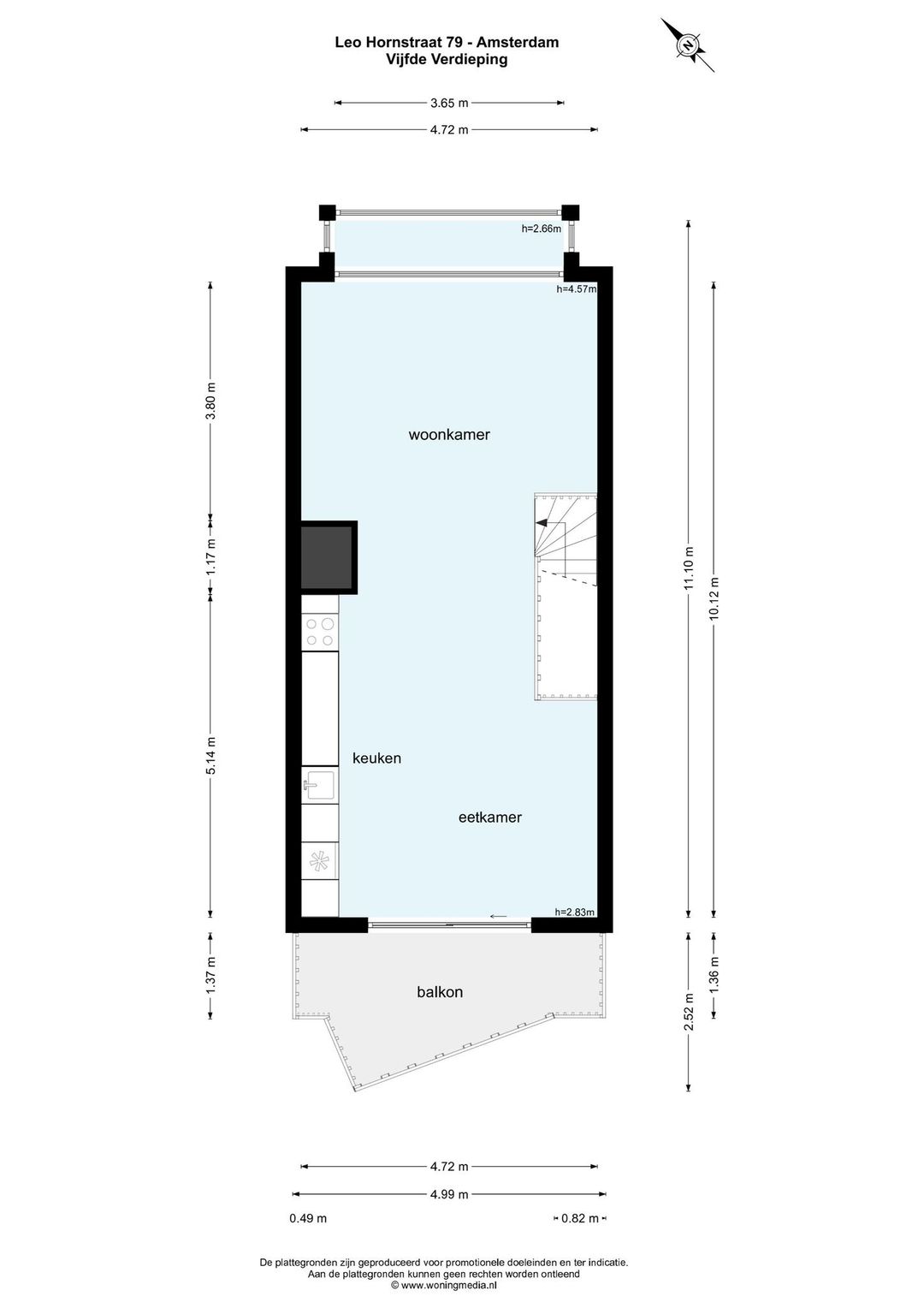
Indeling:

Via de galerij op de vierde verdieping naar eigen voordeur. Bij binnenkomst zijn daar de 3 slaapkamers gesitueerd. Aan de galerijkant is de ruime kamer met veel lichtinval, ook is daar een aparte deur naar de galerij voor een eventuele woon/werk combinatie. Aan de voorzijde zijn 2 kamers gelegen met hoge raampartijen vanaf de grond tot het plafond. De badkamer is voorzien van een ligbad, douche, wastafel en spiegel. Naast de badkamer is een separaat toilet gelegen. In de inpandige bergkast is ruimte voor wasmachine en droger. Met de trap naar boven, daar bevindt zich de fantastische open ruimte met schuin uitzicht op het IJmeer waar je met een weidse blik op uit kijkt en alle voorbijvarende schepen voorbij ziet komen. De hoge plafonds maken het een ruimte die vrij en open aanvoelt. De open keuken is een prachtige keuken van hout met een stoer aanrechtblad, ook is de keuken voorzien van een vaatwasser, inductie kookplaat, oven, koelkast, vriezer en veel opbergruimte. Via de schuifpui is het balkon te bereiken, een heerlijke plek gelegen op het zuiden met uitzicht over de net aangelegde binnentuin. De woonkamer beschikt over een indrukwekkende raampartij voor een heerlijke woonbeleving. Op de begane grond bevindt zich een berging.

Er is binnen de VvE beschikking over diverse gemeenschappelijke voorzieningen, zoals de heerlijke binnentuin, een grote zaal met keuken, voor eigen gebruik en waar veel wordt georganiseerd. Ook is er een gezellige expo-ruimte met bar, met daarboven een bibliotheek annex werkplek en een logeerkamer. Er is een groot dakterras waar je heerlijk kunt zitten en een terras op een van de daken, waar je een moestuinbak kunt aanleggen. Het gebouw is voorzien van een Warmte Koude Opslag in combinatie met zonnepanelen, er wordt geen gebuikt gemaakt van gas.

Omgeving:

De Leo Hornstraat ligt in de Sportheldenbuurt van het Zeeburgereiland. Het Zeeburgereiland is een driehoekig eiland aan de oostkant van Amsterdam. Gelegen binnen de ring van Amsterdam, dicht tegen het centrum aan. Waar op Zeeburgereiland vroeger de waterzuivering zat, verrijst nu een grote wijk. De geschiedenis is nog zichtbaar: de drie gele torens van de waterzuiveringsinstallatie staan er nog, evenals twee slibvijzelgemalen. Zeeburgereiland ligt tussen IJburg, de Indische Buurt en het Oostelijk Havengebied. Dit gebied is nog volop in ontwikkeling, maar al voorzien van diverse winkels, supermarkt en leuke restaurants. Ook zijn hier kinderopvang, een basisschool en twee middelbare scholen gevestigd.
En op minder dan tien minuten fietsen ligt Winkelcentrum IJburg voor een compleet winkelaanbod.

Voor de drie silo’s op Zeeburgereiland is het plan de Drie Koningen gemaakt: met kinderspeelvoorziening, wellness, eventspace en eenkamerhotel, foodlab, bioscoop, brouwcafé, horeca, kantoorruimtes en drie openbare dakterrassen. De Urban Sport Zone Amsterdam is maar liefst de grootste skatebaan van Nederland en ligt op Zeeburgereiland, heel toepasselijk in de Sportheldenbuurt. De baan is prachtig vormgegeven én er is ook een geweldige speeltuin aangelegd. Het geheel is met grasvelden en veel beplanting heel groen aangelegd. Naast het skatepark zijn veel openbare sportvoorzieningen zoals een padelveld en kunstgras voetbalvelden. De kleine oude slibvijzelgemalen zijn een opvallende verschijning tussen de hoge gebouwen. En als je zin hebt in de stad, dan ben je via de Zuiderzeeweg snel in de Indische buurt om boodschappen te doen op de Dappermarkt of te genieten van de overvloed aan restaurantjes aan de Javastraat of iets verder naar het stadscentrum.
Ook op korte fietsafstand gelegen is de bijzondere supermarkt Landmarkt in het pittoreske dorpje Schellingwoude, waar je terecht kunt voor lokale versproducten. Vanaf hier begint ook het groene gebied Waterland, met kleine dorpjes en prachtige vergezichten.
Kortom, Zeeburgereiland is een zeer interessante en inspirerende omgeving om te wonen, tussen de stad en het landelijke in.

Bereikbaarheid:

De locatie is goed bereikbaar met het openbaar vervoer: tramlijn 26 – ook bekend als de IJtram – rijdt tussen IJburg en het Centraal Station (vanaf de halte aan de Bob Haarmslaan is het 10 minuten met de tram naar Centraal), net als de nachtbus N89. Buslijn 37 rijdt tussen het Amstelstation en Station Noord. De haltes liggen op korte loopafstand van het huis.
En met de auto ben je heel snel op de Ring A10. Voor de deur is altijd een parkeerplek te vinden.

Bijzonderheden:

– Bouwjaar 2016
– 4-kamerappartement op de 4e verdieping met berging op de begane grond
– Eigen entree aan een rustige galerij (geen bovenburen)
– Woonoppervlak van circa 101 m² (rapport aanwezig)
– Woonwerkmogelijkheid: twee adressen (79 en 79a)
– Open keuken en ruime badkamer met o.a. ligbad
– Balkon op het zuiden.
– 3 slaapkamers
– Vloerverwarming door het gehele huis
– Grote glazen schuifpui in de woonkamer naar het balkon toe
– Kunststof kozijnen met dubbel glas
– Verwarming middels duurzame WKO-installatie (warmte-koude opslag) en zonnepanelen, volledig van het gas af.
– Energielabel A
– Actieve VvE, professioneel beheer door Nautilus zie ook website voor meer info
– Er wordt een actieve bijdrage van de nieuwe bewoner verwacht aan het collectief
– Bijdrage VvE momenteel €207,- per maand;
– Veel gezamenlijke extra’s in de VvE, zoals: een binnentuin, een dakterras, een theaterzaal met keuken, een expo met bar, een ruimte voor werkplekken en een logeerkamer;
– Lift
– Staande en gelegen op het voortdurend recht van erfpacht. Het huidige tijdvak loopt tot en met 15-9-2064. De canon bedraagt momenteel €604,86 per jaar en wordt 1-jaarlijks geïndexeerd per 16 september.
– Oplevering in overleg.

Lees de volledige omschrijving
Wonen 101 m²
Bouwjaar 2016
Kamers 4

Kenmerken

Aangeboden sinds
6+ maanden
Status
Verkocht
Aanvaarding
In overleg
Soort woonhuis
Appartement, bovenwoning
Soort bouw
Bestaande bouw
Bouwjaar
2016
Soort dak
Bitumineuze dakbedekking
Ligging
Aan rustige weg, in woonwijk, vrij uitzicht

Oppervlakten en inhoud

Wonen
101 m²
Gebouwgebonden Buitenruimte
9 m²
Externe bergruimte
6 m²
Inhoud
393 m³

Indeling

Aantal kamers
4 kamers (3 slaapkamers)
Aantal badkamers
1 badkamer
Badkamervoorzieningen
Douche, ligbad, wastafel
Aantal woonlagen
2
Voorzieningen
Lift, mechanische ventilatie, natuurlijke ventilatie, schuifpui, zonnepanelen

Energie

Energielabel
A
Isolatie
Dakisolatie, dubbel glas, vloerisolatie
Verwarming
Blokverwarming
Warm water
Centrale voorziening

Kadastrale gegevens

Perceelnaam
Amsterdam K 9464
Eigendomssituatie
Erfpacht
Perceel
ASD07-K-9464

Parkeergelegenheid

Soort parkeergelegenheid
Betaald parkeren, openbaar parkeren, parkeervergunningen
Bekijk alle kenmerken