020-2260066
Blog
Verkocht

Edammerpad 1 Amsterdam

Omschrijving

Op een fantastische locatie in Amsterdam Noord bieden wij deze lichte, goed ingedeelde hoekwoning 63 m2 aan met tuin op het zuiden en drie slaapkamers.

Hier de perfecte combinatie van het gevoel te wonen in een dorp én in een grote stad. Het huis beschikt over een woonkamer met half open keuken en heeft maar liefst 3 slaapkamers en de al eerder genoemde tuin. Deze is gelegen op het zuiden waardoor je de gehele dag zon hebt. Ook is er een schuur aan de zijkant van het hoekhuis waar je genoeg plek hebt om je (elektrische)fietsen te stallen.

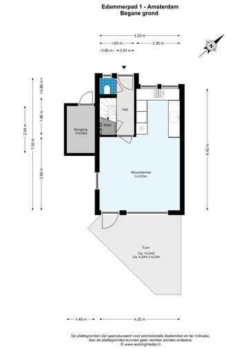
Indeling:
De zeer lichte woonkamer is aan de achterzijde gelegen en vanaf hier is de gezellige zonnige tuin de bereiken. De stoere half open keuken is voorzien van 4-pits kookplaat, vaatwasser, Amerikaanse koelkast en veel opbergruimte, ook zijn er twee raampartijen waardoor je ook in de keuken een fijne lichtinval hebt.
In de hal is er een apart toilet en een trapkast. Via de trap naar de eerste verdieping. Op de eerste verdieping zijn de twee slaapkamers gelegen. Beide kamers zijn licht en van goed formaat. Op deze verdieping is ook de badkamer met inloopdouche. In de kapverdieping nog een volwaardige slaapkamer die via een vaste trap vanaf de overloop bereikbaar is.

De tuin is volledig bestraat en grenst aan een gemeenschappelijke binnenplaats c.q. grasveld. De eigen tuin is heerlijk om op zomerse avonden buiten te zitten. De tuin is goed tegen de wind beschut waardoor je hier van het vroege voorjaar tot het late najaar van elke zonnestraal kunt genieten. Verder heb je direct naast het huis de beschikking over een ruime berging voor extra bergruimte en waar je je fietsen in kunt stallen.

Het complex waar deze woning deel van uit maakt is aangewezen als gemeentelijk monument en het gebied als beschermd dorpsgezicht. De bedoeling is om de bijzondere waarde van de woningen in dit gebied te beschermen en te behouden.

Omgeving:

Gelegen in Amsterdam-Noord met idyllische dorpsgezichten en stadse dynamiek om de hoek. De woning ligt centraal gelegen en heeft alle gewenste voorzieningen in de buurt. Het Purmerplein met leuke buurtwinkeltjes en het door het Parool hoog gewaardeerde restaurant Lazuur, maar ook Winkelcentrum Waterlandplein en Boven ’t Y zijn op loop/fietsafstand. Sinds kort beschikt winkelcentrum boven ‘t IJ over een nieuwe Pathé bioscoop voor een avondje film. Er zijn een aantal basisscholen in de buurt, evenals mooi verzorgde speeltuinen en natuurgebieden zoals De Schellingwouderbreek, waar je heerlijk kunt wandelen. Het Vliegenbos, het oudste stadsbos van Amsterdam, ligt aan de andere kant achter het Purmerplein. Amsterdam Noord heeft de laatste paar jaar een fijne ontwikkeling doorgemaakt en er zijn diverse nieuwe horeca gelegenheden gekomen voor een gezellige avond. Vlakbij bijvoorbeeld Hangar en de Goudfazant, beiden met een terras aan het water. Daarnaast de unieke bioscoop FC Hyena waar je je hapje in de bioscoop mag nuttigen, maar ook aan tafel bij Landmarkt’ dichtbij.
Het NDSM gebied met Pllek, de Canibaal en Noorderlicht, enfin teveel om op te noemen.

Bereikbaarheid:

Het huis heeft een centrale ligging ten opzichte van het openbaar vervoer (Centraal Station en Noord-Zuid lijn), de pont naar Centraal Station is op 15 minuten fietsafstand. Het tochtje met de pont naar de overkant, is de kortste vakantie van Nederland! Je bent zo met de auto op de ring A10. Parkeren in de straat is (nog) onbetaald en zonder vergunning mogelijk.

Bijzonderheden:
– Bouwjaar 1927
– Woonoppervlakte circa 63 m² (rapport beschikbaar)
– Gemeentelijk monument en beschermd dorpsgezicht
– 4-kamer hoekhuis met veel karakteristieke elementen
– 3 slaapkamers!
– Ruime zonnige tuin op het zuiden
– Berging/schuur naast het huis waar o.a. fietsen gestald kunnen worden
– Verwarming en warmwater middels cv-ketel (type Intergas, bouwjaar 2012)
– Gelegen op het voortdurend recht van erfpacht, afgekocht t/m 31-08-2054.
– Gelegen in Tuindorp Nieuwendam
– Algemene ouderdomsclausule van toepassing
– Oplevering in overleg

Lees de volledige omschrijving
Wonen 63 m²
Perceel 51 m²
Bouwjaar 1927
Kamers 4

Kenmerken

Aangeboden sinds
6+ maanden
Status
Verkocht
Aanvaarding
In overleg
Soort woonhuis
Eengezinswoning, hoekwoning
Soort bouw
Bestaande bouw
Bouwjaar
1927
Soort dak
Pannen
Ligging
Aan park, aan rustige weg, beschutte ligging, in woonwijk, vrij uitzicht

Oppervlakten en inhoud

Wonen
63 m²
Externe bergruimte
4 m²
Perceel
51 m²
Inhoud
256 m³

Indeling

Aantal kamers
4 kamers (3 slaapkamers)
Aantal badkamers
1 badkamer
Badkamervoorzieningen
Inloopdouche
Aantal woonlagen
3
Voorzieningen
Dakraam, natuurlijke ventilatie, tv kabel

Energie

Isolatie
Dubbel glas, muurisolatie
Verwarming
Cv ketel
Warm water
Cv ketel
Cv-ketel
Intergas (gas gestookt combiketel uit 2012, eigendom)

Kadastrale gegevens

Perceelnaam
Amsterdam AL 4381
Oppervlakte
51 m²
Eigendomssituatie
Erfpacht
Perceel
ASD31-AL-4381

Buitenruimte

Tuin
Achtertuin
Achtertuin
14 m²
Ligging tuin
Zuid bereikbaar via achterom

Parkeergelegenheid

Soort parkeergelegenheid
Openbaar parkeren
Bekijk alle kenmerken