020-2260066
Blog
Verkocht

Discusstraat 9 H Amsterdam

Omschrijving

Fijn en sfeervol 2-kamer benedenhuis van circa 33 m² met een berging op zolder van ruim 8 m² en een berging in de heerlijk grote tuin, in een gezellige en rustige straat in de Stadionbuurt van Zuid. Het appartement is onder andere voorzien van een woonkamer met deuren naar de zonnige tuin, open keuken met eethoek, een ruime slaapkamer en aangesloten badkamer en een zolderkamer op de tweede verdieping, welke ideaal is als berging of werkkamer. De locatie van het appartement is top, in een heerlijk rustige, autoluwe straat, maar om de hoek van winkels, gezellige cafés en restaurants.

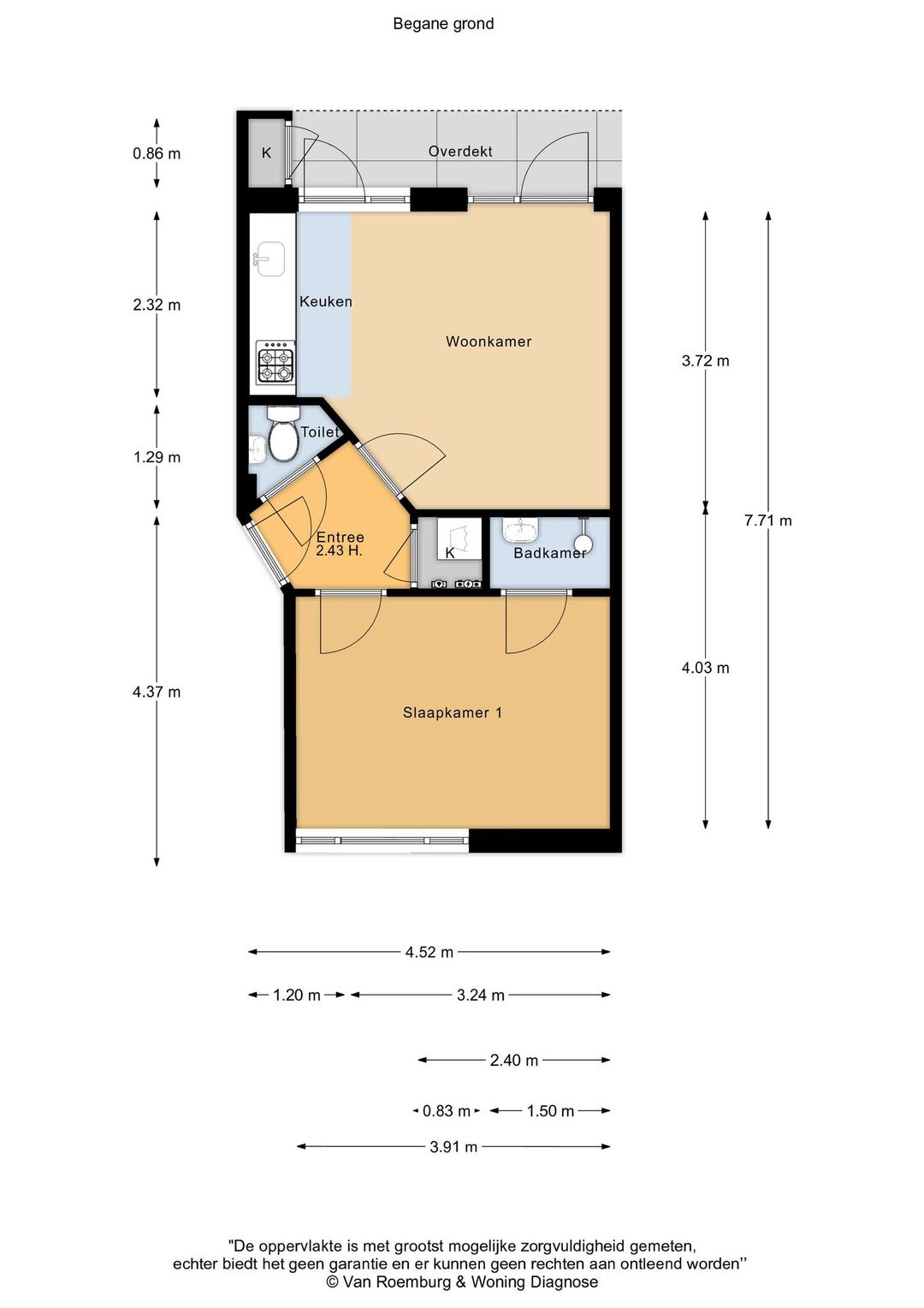
Indeling

Via de gemeenschappelijke ingang kom je bij de eigen entree op de begane grond. De woonkamer met eethoek en open keuken ligt aan de achterzijde van het huis, met uitzicht op en toegang naar de ruime tuin. Aan de voorzijde van het huis is de ruime slaapkamer gelegen. Een fijne kamer met veel lichtinval. Vanuit de slaapkamer is de badkamer te betreden, welke is voorzien van een wastafel en douche. Het toilet met fonteintje bevindt zich aan de hal. Ook ligt er een kleine bergruimte aan de hal, met aansluiting voor de wasmachine en -droger. De tuin is netjes aangelegd met een combinatie van bestrating en groen. Het tuinhuis biedt veel opbergruimte, ook ideaal voor het stallen van een of meerdere fietsen. Op de tweede verdieping ligt een fijne ruimte die gebruikt kan worden als berging, hobby- of werkkamer.

Ligging

De Discusstraat is een heerlijk rustige straat tussen de Stadionweg en de Olympiaweg en vlakbij het prachtige Olympisch Stadion. Het appartement is gelegen in de populaire Stadionbuurt in stadsdeel Zuid. Op de Marathonweg, het Olympiaplein en het Stadionplein bevinden zich vele winkels voor de dagelijkse boodschappen en ook zijn hier diverse leuke horecagelegenheden, zoals bar Baut, Mr Sam, Café Kiebêrt en Bar Hendrik. Voor sport en ontspanning liggen het Vondelpark en het Beatrixpark op korte fietsafstand en ook het Amsterdamse Bos ligt op minder dan tien minuten fietsen.

Bereikbaarheid

De bereikbaarheid van dit appartement is zeer goed. Er zijn diverse tram- en bushaltes in de buurt, zoals de haltes aan het Olympiaplein, Olympiaweg en het Haarlemmermeerstation, waarvandaan trams en bussen in alle richtingen vertrekken. De uitvalswegen met onder andere de Ring A-10 worden binnen mum van tijd bereikt.

Bijzonderheden

– Bouwjaar 1930;
– Benedenhuis met royale tuin op het noordoosten;
– Tuinhuis met berging;
– Zolder berging die gebruikt wordt als werkplek 8 m²;
– Woonoppervlak van circa 33 m² (meetrapport aanwezig);
– Woonkamer met keuken aan de tuinzijde;
– Ruime slaapkamer;
– Badkamer met wastafel en douche grenzend aan de slaapkamer;
– Nette laminaat vloer;
– Kunststof kozijnen met dubbel glas;
– Verwarming en warm water middels cv-ketel;
– VvE in professioneel beheer (MJOP aanwezig);
– Bijdrage VvE bedraagt € 107,81 per maand;
– Gelegen op het voortdurend recht van erfpacht, de canon is afgekocht tot en met 31-08-2060;
– Rijksbeschermd stadsgezicht, plan Zuid;
– Oplevering in overleg.

Lees de volledige omschrijving
Wonen 33 m²
Bouwjaar 1930
Kamers 3

Kenmerken

Aangeboden sinds
6+ maanden
Status
Verkocht
Aanvaarding
In overleg
Soort woonhuis
Appartement, benedenwoning
Soort bouw
Bestaande bouw
Bouwjaar
1930
Ligging
Aan rustige weg, beschutte ligging, in woonwijk

Oppervlakten en inhoud

Wonen
33 m²
Gebouwgebonden Buitenruimte
3 m²
Externe bergruimte
12 m²
Inhoud
104 m³

Indeling

Aantal kamers
3 kamers (1 slaapkamer)
Aantal badkamers
1 badkamer
Badkamervoorzieningen
Inloopdouche, wastafel
Aantal woonlagen
2
Voorzieningen
Mechanische ventilatie, tv kabel

Energie

Isolatie
Dubbel glas
Verwarming
Cv ketel
Warm water
Cv ketel

Kadastrale gegevens

Perceelnaam
Amsterdam AC 1342
Eigendomssituatie
Erfpacht
Perceel
ASD24-AC-1342
Perceelnaam
Amsterdam AC 1342
Eigendomssituatie
Erfpacht
Perceel
ASD24-AC-1342

Buitenruimte

Tuin
Achtertuin
Achtertuin
31 m²
Ligging tuin
Noordoost

Parkeergelegenheid

Soort parkeergelegenheid
Betaald parkeren, openbaar parkeren, parkeervergunningen
Bekijk alle kenmerken