020-2260066
Blog
Verkocht

Curacaostraat 25 H Amsterdam

Omschrijving

Modern gerenoveerd benedenhuis van circa 86 m² met geweldige tuin. Gelegen op eigen grond. Een 3-kamerappartement in een fantastische jaren 30 stijl. Tijdens de renovatie zijn diverse originele details behouden gebleven. In de woning ligt een eiken lamelparket vloer en is de oude schouw behouden en is er een mooie erker aan de voorzijde. Een woning met karakteristieke details maar geheel gerenoveerd waardoor je er zo in kan. Verder beschikt het huis over een sfeervolle woonkamer, moderne open keuken, een nette badkamer met ligbad en inloop douche en er zijn twee ruime slaapkamers met beide toegang tot de zonnige tuin. De tuin ligt op het westen, waardoor je geniet van de middag- en avondzon. De ligging van het appartement is in een rustige straat in Amsterdam West, gesitueerd tussen het Rembrandtpark en het Vondelpark. In de buurt vind je leuke winkels, hippe restaurants en gezellige terrasjes in overvloed. En via de parken fiets je zo naar de andere delen van de stad. Een super fijn appartement met tuin in een leuke buurt, dat wij u graag laten zien!

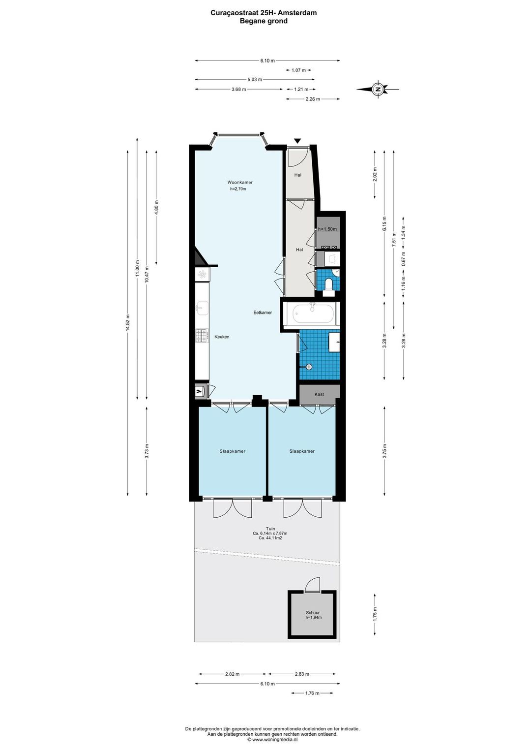
Indeling:

Eigen entree, binnenkomst in de prachtige hal met oude muurtegels en glas in lood ramen in de deur. In de gang bevindt zich een trapkast met bergruimte, kast met wasmachine/droger aansluiting en het separaat toilet. De woonkamer ligt aan de voorzijde en is voorzien van een sfeervolle schouw en originele erker. De prachtige moderne open keuken beschikt over een 5- pits gasfornuis, afzuigkap, vaatwasser, koelkast en vriezer. Ook is er genoeg werkruimte en veel kastruimte.
Omdat het een open kamer is voelt het licht, ruimtelijk en open. Kortom, een heerlijke leefruimte.

Vanuit de keuken zijn de twee slaapkamers te bereiken, aan de linker kant de master bedroom met ingebouwde kast en openslaande deuren naar de heerlijke tuin. De tweede slaapkamer is een fijne kamer met ook weer openslaande deuren naar de tuin. De badkamer is modern en strak en beschikt over een ligbad, inloopdouche, badkamermeubel, spiegel en handdoekenradiator.

De heerlijk ruime tuin gelegen op het westen is grotendeels betegeld wat zorgt voor weinig onderhoud. De oude bomen geven beschutting en privacy zonder alle zon weg te halen. Links achterin een grote schuur.

Omgeving:

Het appartement ligt nabij het Surinameplein in Amsterdam West, op de rand met Amsterdam Zuid, precies tussen het Vondelpark en het Rembrandtpark in en om de hoek van de Overtoom. Een ideale ligging: na een fietstochtje door het Vondelpark ben je al in het Centrum van Amsterdam. Het is een locatie met alles in de buurt. Zowel het winkel- en horeca-aanbod aan de Overtoom, de Amstelveenseweg, in de Baarsjes of in de Kinkerbuurt en de Helmersbuurt: het is allemaal lopend of per fiets gemakkelijk te bereiken. Denk aan: Café Oslo, Coffee & Juices, Bar Kosta, Gent aan de Schinkel, Stadscafé van Mechelen, de Vondeltuin, De Hallen, en nog veel meer. Voor de dagelijkse boodschappen zijn er meerdere supermarkten in de buurt.

Bereikbaarheid:

De locatie is uitstekend bereikbaar met het openbaar vervoer. De halte voor tramlijn 17 en buslijn 15 ligt vlakbij aan de Hoofdweg en de halte voor tramlijn 1 ligt aan het Surinameplein. Deze lijnen brengen je onder andere naar het centrum en het Centraal Station of naar het dichtbij gelegen Station Lelylaan, vanwaar je met de trein naar Schiphol kunt of met de metro naar Station Zuid-WTC. Met de auto is er via de S106 zeer snelle verbinding naar de Ring A10.

Bijzonderheden:
– Gelegen op eigen grond
– Woonoppervlakte circa 86 m² (rapport aanwezig)
– 3-kamer appartement op begane grond
– Sfeervolle woonkamer met prachtige schouw en erker
– Fantastische open woonkeuken
– Door het gehele huis ligt een lichte eiken vloer
– Moderne badkamer met ligbad en inloopdouche
– Ruime tuin gelegen op het westen
– De tuin is volledig betegeld en heeft daarom weinig onderhoud nodig
– Verwarming en warmwater middels cv-ketel (Intergas Kombi Kompakt HRE 24, bouwjaar 2017)
– Energielabel C
– Gezonde VvE
– Bijdrage VvE is €131,42 per maand
– Oplevering in overleg

Lees de volledige omschrijving
Wonen 86 m²
Bouwjaar 1935
Kamers 3

Kenmerken

Aangeboden sinds
6+ maanden
Status
Verkocht
Aanvaarding
In overleg
Soort woonhuis
Appartement, benedenwoning
Soort bouw
Bestaande bouw
Bouwjaar
1935
Soort dak
Pannen
Ligging
Aan rustige weg, in woonwijk

Oppervlakten en inhoud

Wonen
86 m²
Externe bergruimte
3 m²
Inhoud
319 m³

Indeling

Aantal kamers
3 kamers (2 slaapkamers)
Aantal badkamers
1 badkamer
Badkamervoorzieningen
Inloopdouche, ligbad, vloerverwarming, wastafel, wastafelmeubel
Aantal woonlagen
1
Voorzieningen
Mechanische ventilatie, natuurlijke ventilatie

Energie

Energielabel
C
Isolatie
Dubbel glas
Verwarming
Cv ketel
Warm water
Cv ketel
Cv-ketel
Intergas Kombi Kompakt HRE 24 (gas gestookt combiketel uit 2017, eigendom)

Kadastrale gegevens

Perceelnaam
Sloten M 1885
Eigendomssituatie
Volle eigendom

Buitenruimte

Tuin
Achtertuin
Achtertuin
47 m²
Ligging tuin
Zuidwest

Parkeergelegenheid

Soort parkeergelegenheid
Betaald parkeren, openbaar parkeren, parkeervergunningen
Bekijk alle kenmerken